Theratio
  • Home
  • About Us
  • Bim Services
    • Architectural BIM Services
    • Structural BIM Services
    • Interior BIM Services
    • MEP BIM Services
    • Landscape BIM Services
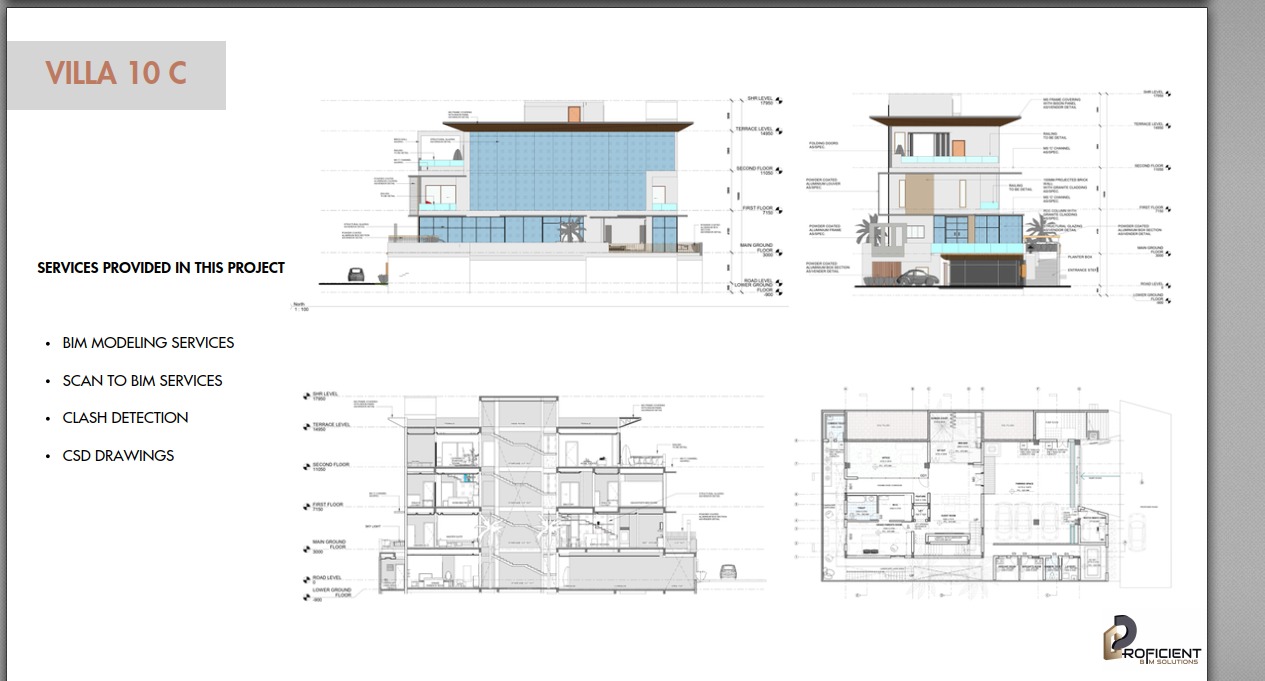
    • Scan To BIM Services
  • BIM Projects
  • Blog
    • Architecture
    • Structure
    • MEP
  • Contacts
Theratio
  • Home
  • About Us
  • Bim Services
    • Architectural BIM Services
    • Structural BIM Services
    • Interior BIM Services
    • MEP BIM Services
    • Landscape BIM Services
    • Scan To BIM Services
  • BIM Projects
  • Blog
    • Architecture
    • Structure
    • MEP
  • Contacts

Projects

  • Home
  • Our Projects
[ our portfolio ]

Some of Our Works
and Case Studies for Clients

  • All
  • Shop Drawings
  • Onsite Works
  • As Built Drawings
  • Modeling And Coordination
  • Scan to Bim
Voltas-Qatar
Club Drive Residence - IDA Dubai
Voltas-Qatar
GreenSide Residence - IDA Dubai
Voltas-Qatar
Voltas-Qatar

Involved and updated new revisions for all shop drawings

Comfotec-Dubai
Comfotec-Dubai

Supplied 6 draftsmen for onsite works

Comfotec-Dubai
Comfotec-Dubai

Prepared all shop drawings and coordination drawings from Proficient office

LnT Hyderabad
LnT Hyderabad

Working for As-built drawings 2D and 3D modelers

ALYSJ Joint Venture Qatar
ALYSJ Joint Venture Qatar

Supplied 10 modelers for onsite works

Voltas-India
Voltas-India

Modeling And coordination for the project LOD 350

LnT Hyderabad
LnT Hyderabad

Shop Drawings & As-built Drawings

IOBG Mumbai
IOBG Mumbai

Modeling And coordination for the project LOD 500

Sterling Wilson
Sterling Wilson

Modeling And coordination

Sterling Wilson

Sterling Wilson

Voltas
Voltas

3D Modeling, MEP coordination & Shop drawings LOD 400

Crafting the future of AEC

Contacts
  • Office no : 106, plot not : 644-0, 25th street, AL koubaisi building, AL khabeesi area Dubai
  • info@proficient-bimsolutions.com
  • +971 55 439 6321
Latest Projects
  • Stylish Family Apartment
  • Modern Villa in Dubai
  • Private House in Abu Dhabi
Subscribe

Follow our newsletter to stay updated about agency.